Главная _
Приточно-вытяжная установка Breezart 2700 Aqua RR F
Приточно-вытяжная установка Breezart 2700 Aqua RR F
По запросу
Быстрый заказДоставка в Вышний Волочёк
До ПВЗ: от 220 руб., 2 - 3 дня
Доставка до двери: от 370 руб., 2 - 3 дня
1 пункт выдачи в Вышнем Волочке Подробнее
Бренд: Breezart
Описание:
- Приточно-вытяжная установка напольного типа с роторным рекуператором, фреоновым охладителем, водяным нагревателем и смесительным узлом с 2-х или 3-х ходовым клапаном (узел подбирается исходя из типа водоснабжения).
- В комплекте с воздушными клапанами с электроприводом (с возвратной пружиной), системой цифровой автоматики JetLogic с цветным сенсорным пультом управления и всеми необходимыми датчиками.
- Блок автоматики управляет различными типами ККБ.
- Вентиляторы Ebmpapst серии EC Немецкого производства.
- Автоматика:
- Возможность управления клапаном смесительного узла калорифера для нагрева воздуха до заданной температуры, защита от замораживания.
- Ступенчатая регулировка скорости вентилятора, 10 ступеней.
- Управление увлажнителем воздуха с пульта вентустановки.
- Управление ККБ различного типа, в том числе сигналом 0-10В.
- Возможность контроля загрязненности воздушного фильтра (цифровой датчик давления).
- Недельных сценариев, функции «Комфорт» и «Рестарт» восемь.
- Текущее времяи (не сбрасываются при сбое питания).
- Возможность создания VAV-системы (требуется набор VAV-DP).
- Порты ModBus RTU для подключения к системе «умный дом».
- Установка управляется удалённо с компьютера или смартфона / планшета.
- Список совместимых опций:
- WEB – Удаленное управление вентустановкой через web-интерфейс.
- CT – Поддержание температуры в помещении по доп. датчику температуры (каскадный регулятор).
- CC – Автоматическое переключение тепло/холод (датчик заказывается отдельно).
- DC – Выход "сухие контакты" для управления ККБ типа On/Off (несовместимо с PC).
- PC – Выход 0-10В для управления инверторным ККБ (несовместимо с DC).
- Список совместимого оборудования:
- JLS26H – Датчик влажности и температуры, выход Modbus RTU.
- TPD-283U-H – Пульт управления Breezart с цветным сенсорным дисплеем.
- VAV-DP2 – Комплект для создания VAV-системы (модуль JL202DPR, RSCON, кабель 15м, трубка 1м, адаптер).
Характеристики:
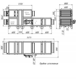
- Вес (кг)253.
- Код воздушного фильтра ФВК-600-350-300-6-G4.
- Код нагревателя W63-S3-25-6-4 / W63-S3-25-8-4 / W63-S2-25-6-1.
- Мощность, кВт1.7/1.9.
- Напряжение В220.
- Производительность, м3/ч2700.
- Тип нагревателя Водяной.
- Тип охлаждения Фреоновый.
- Тип рекуператора Роторный.
- Ток (А):7.7/8.4.
- Уровень шума в канале дБА65/70/56.
- Уровень шума, дБа41.
| Производитель: | Breezart |
| Цвет: | серебро серый |
Авторизуйтесь, чтобы оставить отзыв: Войти








